Shop 16 & 17 / 300-306 Canterbury Road, Canterbury
Fantastic Ground Floor Office Suite with Ample Parking
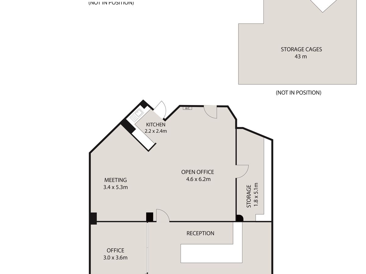
Located just off Canterbury Road, this renovated, neat and tidy ground floor commercial space could be used for a variety of businesses and offers immediate opportunity to simply walk in and start trading.
Features include
* Approx shop area 116m2
* 4 parking spaces + huge storage room
* Abundance of natural light
* Own kitchenette and existing AC in place
* Direct rear access to communal gardens and toilet amenities
* Great signage potential
Inspection is a must! Please contact the exclusive agents to arrange an inspection.
Mortgage Calculator
$3,078
Estimated monthly repayments based on advertised price of $0.
Property Price
Deposit
Loan Amount
Interest Rate (p.a)
Loan Terms









