347 Liverpool Road , Ashfield
Newly Renovated Restaurant | Walk In & Start Trading
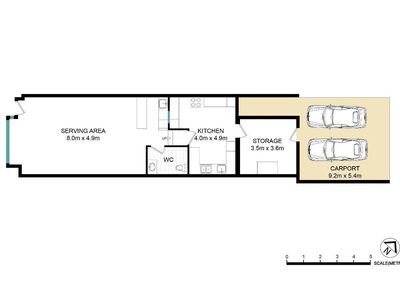
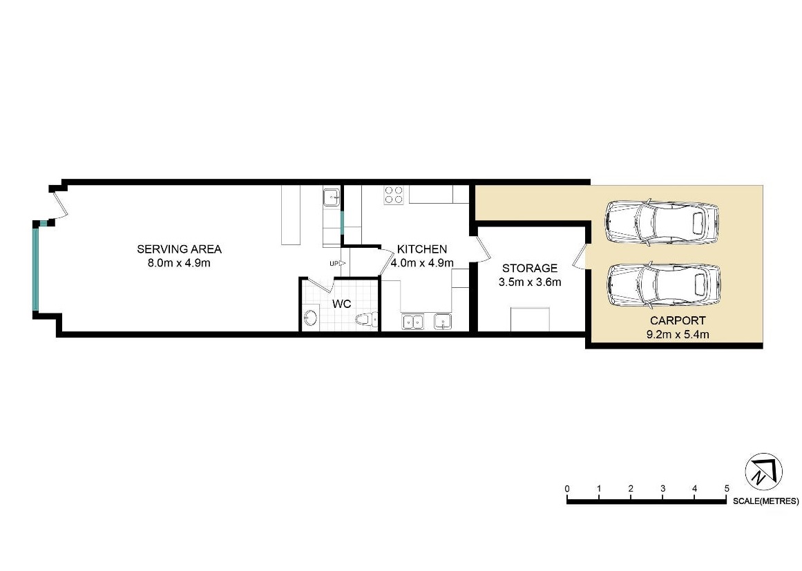
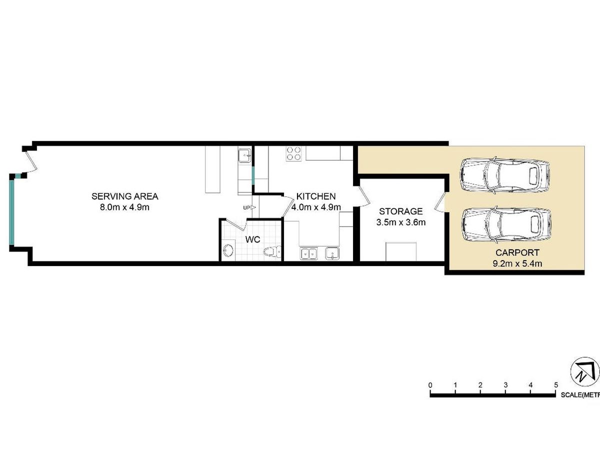
This newly renovated commercial property offers a fully fitted restaurant with premium fixtures, modern finishes, and nothing more to spend. Perfectly positioned along bustling Liverpool Road, it enjoys excellent visibility, constant pedestrian flow, and convenient access to Ashfield Mall, Ashfield Station, and major transport links.
A true walk in and start opportunity, the property features:
* Modern and renovated throughout – no further upgrade costs
* Fully equipped commercial kitchen with rangehood and air-conditioning systems
* Two private car spaces with convenient rear lane access
* Prime Liverpool Road exposure – short walk to Ashfield Mall & Ashfield Station
* Lease assignment with existing lease ending 15/12/2027 + 3 year + 2 year option
Please contact the exclusive leasing agents to arrange an inspection.
Mortgage Calculator
$3,078
Estimated monthly repayments based on properties like this.
Loan Amount
Interest Rate (p.a)
Loan Terms









